PLANNING DRAWINGS

Capture.JPG
 
 

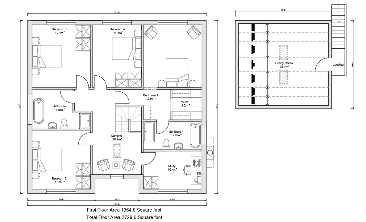
To gain planning permission, planning drawings are needed. We'll do a full survey of the existing dwelling/land, get this drawn in CAD, then on the next page, design and detail the proposal. With our experience in the industry, we can guide the design to what's more likely to be accepted and add the necessary detail to help ensure a successful application. With a free consultation, what do you have to lose?

Contact